
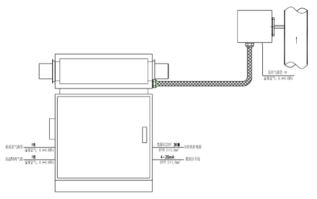
山东新泽仪器有限公司生产的TK-1100型氨逃逸在线监测系统采用高温伴热抽取技术+TDLAS技术(可调谐半导体激光光谱吸收技术),对脱硝过程中的逃逸氨进行连续在线监测,系统由取样及传输单元、预处理及控制单元、分析单元三部分构成,主要应用于众多工业领域气体排放监测和过程控制,例如:燃煤发电厂、铝厂、钢铁厂、冶炼厂、垃圾发电站、水泥厂和化工厂、玻璃厂等。
技术优势
●可靠的长光程加热气室设计,光程可达760mm;
●超低浓度测量,分辨率可达0.1ppm;
●半导体激光的谱宽小于0.001nm,避免粉尘和水分交叉干扰;
●设备维护简单,使用成本低。

Copyright © 2015-2018 SDXZYQ.COM. 山东新泽仪器有限公司 版权所有
地址:济南市槐荫区太平河南路1567号均和云谷汇智港6号楼